Rain/Snow Detector
HD2013.3 detects all kinds of precipitation using a capacitive sensor. The capacitance of the angle sensor surface changes as it is dampened by raindrops. The integrated heater automatically kicks on at low temperatures and keeps the sensor surface dry and prevents false signals caused by fog or dew. Snow is detected by changes to the ambient temperature of the sensor surface. The detector also automatically calibrates to compensate for dirt and dust that may accumulate.
To determine if a precipitation is in progress, the instrument detects the percentage of the sensor surface that is dry: 100% = sensor completely dry 0% = sensor is completely wet.
When the percentage of the sensor surface falls below a configurable threshold value (default 95%), the instrument indicates that precipitation is in progress
Available models:
- HD2013.3: RS485 output with MODBUS-RTU or proprietary protocol, 4 -20 mA analog output and voltage-free contact output.
- HD2013.3AV: RS485 output with MODBUS-RTU or proprietary protocol, 0 - 10 V analog output and voltage-free contact output.
- HD2013.3S: RS485 output with MODBUS-RTU or proprietary protocol.
Accessories:
- CP2013.2.5: Cable, 5 meters long with waterproof 8 pole connector on one side and free wires on the other.
- CP2013.2.10: Cable, 10 meters long with waterproof 8 pole connector on one side and free wires on the other.
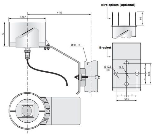
- HD2013.2D: Bird spikes (6 spikes ∅ 3 mm, height 60 mm).

